THEORY : - The Universal Testing Machine consists of two units.
1) Loading unit, 2) Control panel.
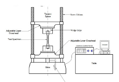
LOADING UNIT
It consists of main hydraulic cylinder with robust base inside. The piston which moves up and down. The chain driven by electric motor which is fitted on left hand side. The screw column maintained in the base can be rotated using above arrangement of chain. Each column passes through the main nut
which is fitted in the lower cross head.
The lower table connected to main piston through a ball & the ball seat is joined to ensure axial loading. There is a connection between lower table and upper head assembly that moves up and down with main piston.
The measurement of this assembly is carried out by number of bearings which slides over the columns.
The test specimen each fixed in the job is known as ‘Jack Job’. To fix up the specimen tightly, the movement of jack job is achieved helically by handle.
CONTROL PANEL
It consists of oil tank having a hydraulic oil level sight glass for
checking the oil level. The pump is displacement type piston pump having free plungers those ensure for continuation of high pressure. The pump is fixed to the tank from bottom.
The suction & delivery valve are fitted to the pump near tank Electric motor driven the pump is mounted on four studs which is fitted on the right side of the tank. There is an arrangement for loosing or tightening of
the valve. The four valves on control panel control the oil stroke in the hydraulic
system.
The loading system works as described below.
The return valve is close, oil delivered by the pump through the flow control valves to the cylinder & the piston goes up. Pressure starts
developing & either the specimen breaks or the load having maximum value is controlled with the base dynameters consisting in a cylinder in which the piston
reciprocates.
The switches have upper and lower push at the control panel for the downward & upward movement of the movable head. The on & off switch provided on the control panel & the pilot lamp shows the transmission of main supply.
METHOD OF TESTING:-
Initial Adjustment: - before testing adjust the pendulum with respect to capacity of the test i.e. 8 Tones; 10 Tones; 20 Tones; 40 Tones etc.
For ex: - A specimen of 6 tones capacity gives more accurate result of 10 Tones capacity range instead of 20 Tones capacity range. These ranges of capacity are adjusted on the dial with the help of range selector knob. control weights of the pendulum are adjusted correctly. The ink should be inserted in pen holder of recording paper around the drum & the testing process is started depending upon the types of test as mentioned below.
TENSION TEST:-
Select the proper job and complete upper and lower check adjustment. Apply some Greece to the tapered surface of specimen or groove. Then operate the upper cross head grip operation handle & grip the upper end of test specimen fully in to the groove. Keep the lower left valve in fully close position. Open the right valve & close it after lower table is slightly
lifted. Adjust the lower points to zero with the help of adjusting knob. This is necessary to remove the dead weight of the lower table. Then lock the jobs in this position by operating job working handle. Then open the left control
valve.
The printer on dial gauge at which the specimen breaks slightly return back & corresponding load is known as breaking load & maximum load is known as the ultimate load.
COMPRESSION TEST
Fix upper and lower pressure plates to the upper stationary head & lower table respectively. Place the specimen on the lower plate in order to
grip. Then adjust zero by lifting the lower table. Then perform the test in the same manner as described in tension test.
FLEXURAL OR BENDING TEST:-
Keep the bending table on the lower table in such a way that the central position of the bending table is fixed in the central location value of the
lower table. The bending supports are adjusted to required distance. Stuffers at the back of the bending table at different positions. Then place
the specimen on bending table & apply the load by bending attachment at the upper stationary head. Then perform the test in the same manner as described in tension test.
BRINELL HARDNESS TEST:-
Place the specimen on the lower table & lift it up slightly. Adjust the zero fixed value at the bottom side of the lower cross head. Increase the load slowly ultimate load value is obtained. Then release the load slowly with left control valve. Get the impression of a suitable value of five to ten millimeter on the specimen & measure the diameter of the impression
correctly by microscope & calculate Brinell hardness.
SHEAR TEST:-
Place the shear test attachment on the lower table, this attachment
consists of cutter. The specimen is inserted in roles of shear test attachment & lift
the lower table so that the zero is adjusted, then apply the load such that the specimen breaks in two or three pieces. If the specimen breaks in two pieces then in angle shear, & if it breaks in three pieces then it will be in it will be double shear.
STUDY OF EXTENSOMETER:-
This instrument is an attachment to Universal / Tensile Testing Machines. This measures the elongation of a test place on load for the set gauge length. The least count of measurement being 0.01 mm, and maximum elongation measurement up to 3 mm. This elongation measurement helps in finding out the
proof stress at the required percentage elongation.
WORKING OF THE INSTRUMENT
Measuring Range: 0 – 3 mm.
Least Count: 0. 01 mm.
Gauge Length adjustable from: 30 – 120 mm
Specimen Size: 1 to 20mm Round or Flats up to 20 x 20 mm.


No comments:
Post a Comment